Experiences
  • Projects
About me
Pierre Boneff
Experiences
  • Projects
About me

Primary school and gymnasium

ENSA Paris La Villette
2020

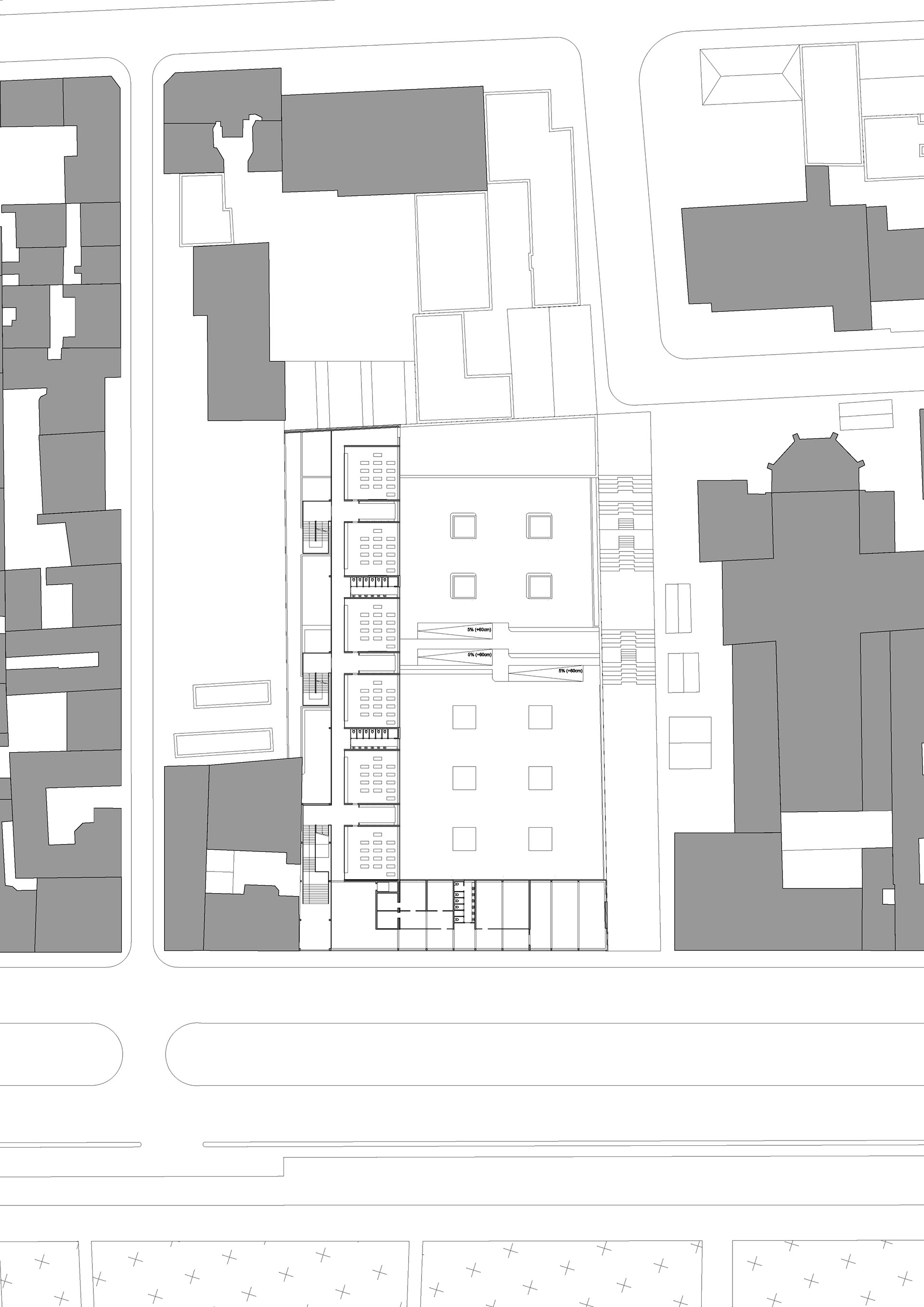
This project consists of the design of two public facilities, a primary school and a gymnasium. While the latter is intended for a multigenerational audience, a primary school must be designed for children who attend it every day. The topography of the site allows for a leveled design. A new alley is built between the boulevard and Rue René Villermé, 7 meters lower to the west. The school is accessible from Boulevard Ménilmontant through an atrium between the adjoining building and the school's street building, which extends into the depth of the site. The twelve classrooms are distributed in a wing crossing the plot from East to West, developing over two levels on stilts forming a playground in the courtyard. This courtyard rises at the back of the plot to become the roof of the semi-buried gymnasium, accessible from Rue René Villermé, 7 meters lower.

© 2025 | Pierre Boneff | Tous droits de reproduction et de copie réservés.